Архив. Объявление «Система bluEvolution Совершенство – made in Germany» от 19.11.2011 устарело и поэтому скрыто.
Закажите окна просто за три шага
Первый шаг — заявка на замер окон
1
Заказ звонка
Закажите звонок специалиста и договоритесь о замере для точного расчета.
2
Заключение договора
Договор с гарантиями и указанием сумм и подтверждением факта оплаты
3
Доставка и монтаж
от 1 дня в зависимости от объема заказа
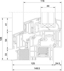
Система bluEvolution Совершенство – made in Germany
Монтажная ширина 92 мм, 6 камер в раме и створке, а также возможность установки стеклопакета до 60 мм гарантируют исключительную теплоизоляцию и значительно повышают показатели энергоэффективности окна. Визуальная высота комбинации рамы и створки всего в 118 мм увеличивает световой проем конструкции и способствует максимальному освещению. Таким образом, система bluEvolution задает тренд на элегантные и четкие формы окна.
Мнение редакции может отличаться от мнения автора.
Контакты скрыты
Просмотрите новые объявления в рубрике ОКНА, фасады: предложение
Просмотрите новые объявления в рубрике ОКНА, фасады: предложение
| Другие объявления в данной рубрике: |
Обшивка вагонкой, сайдингом Качественная обшивка балконов, потолков, стен вагонкой и сайдингом любой сложности. Вагонка 10см. 25см. 30см. бесшовная. Работу делаем быстро и ...
Окна, двери металлопластиковые Предлагаем вам качественные окна, двери, а также балконы под ключ с выносом с немецких профилей REHAO, SALAMANDER. Сергей 0669724793
Инновационные технологии, качество без компромиссов Высочайшие возможности применяемых энергосберегающих стеклопакетов шириной до 44 мм! В металлопластиком окне GEALAN IQ 7000 Passivhaus устанавливается 4 (Четыре!) контура уплотнения. Такое количество контуров позволяет изготовить окна ...
`пассивный дом` Первое в мире металлопластиковое окно, имеющее сертификат соответствия технологии `Passivhaus` `пассивный дом` Мы предлагаем только качество Мы не предлагаем дешевле всех. Мы предлагаем премиум качество за адекватные деньги. Помните-Вы вкладываете деньги в изделие, рассчитанное на ... |
| Похожие объявления в других регионах: |
вікна ЛЬВІВ, вікна буськ, вікна броди, вікна дубно Виробник пропонує металопластикові вікна (3, 4, 5 камерні) термін виконання 1 Тиждень, будь які конструкції, вікна в кольорі. Встановлення. Доставка. ...
вкіна САМБІР, вікна ТУРКА, вікна свалява, вікна іршава Виробник пропонує металопластикові вікна (3, 4, 5 камерні) термін виконання 1 Тиждень, будь які конструкції, вікна в кольорі. Встановлення. Доставка. ...
вікна трускавець, вікна славське, вікна моршин, РОЖНЯТІВ Виробник пропонує металопластикові вікна (3, 4, 5 камерні) термін виконання 1 Тиждень, будь які конструкції, вікна в кольорі. Встановлення. Доставка. ...
вікна СХІДНИЦЯ, вікна борислав, вікна дрогобич, стебник Виробник пропонує металопластикові вікна (3, 4, 5 камерні) термін виконання 1 Тиждень, будь які конструкції, вікна в кольорі. Встановлення. Доставка. ...
вікна стрий, вікна калуш, вікна БОЛЕХІВ, вікна долина Виробник пропонує металопластикові вікна (3, 4, 5 камерні) термін виконання 1 Тиждень, будь які конструкції, вікна в кольорі. Встановлення. Доставка. ...
Окно за 1225 грн. “Корпорация Оконных Технологий” является производителем свето-прозрачных металлопластиковых конструкций в Кривом Роге, широкий выбор профильных ...
Окна и балконы металлопластиковые Установка окон, балконов металлопластиковых. Опытные монтажники выполнят точные замеры и установку конструкций. Отливы. Откосы.
Цены низкие! Металопластикові Вікна Дубно, Вікна Радевилів, Вікна Броди, Вікна Буськ Термін виконання від 1 тижня Найбільший виробник у Львівській обл. пропонує ...
Вікна Ужгород, Вікна Мукачево, Вікна Берегово, Свалява Металопластикові Вікна Ужгород, Вікна Мукачево, Вікна Берегово, Свалява Термін виконання від 1 тижня Найбільший виробник у Львівській обл. пропонує ... |


